Home
Philosophy
Site Plan
House Designs
News
Community Partners
Sales Info
Menu
EspaƱol
An innovative neighborhood in Medford
Home
Philosophy
Site Plan
House Designs
News
Community Partners
Sales Info
House Designs
"Hummingbird" (1 Bedroom / 1 Bath - 626 sf)
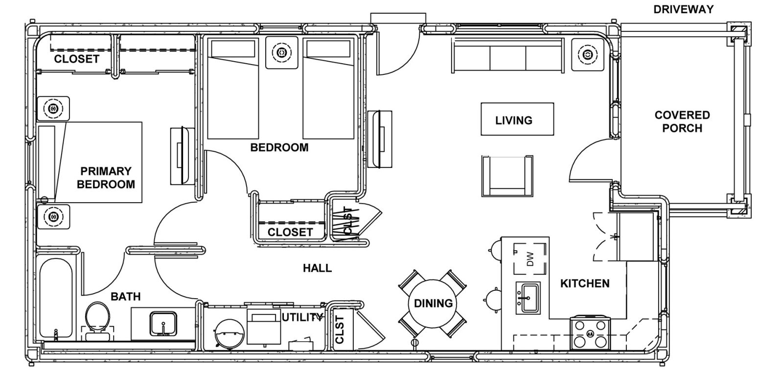
"Bluebird" (2 Bedroom / 1 Bath 808 sf)
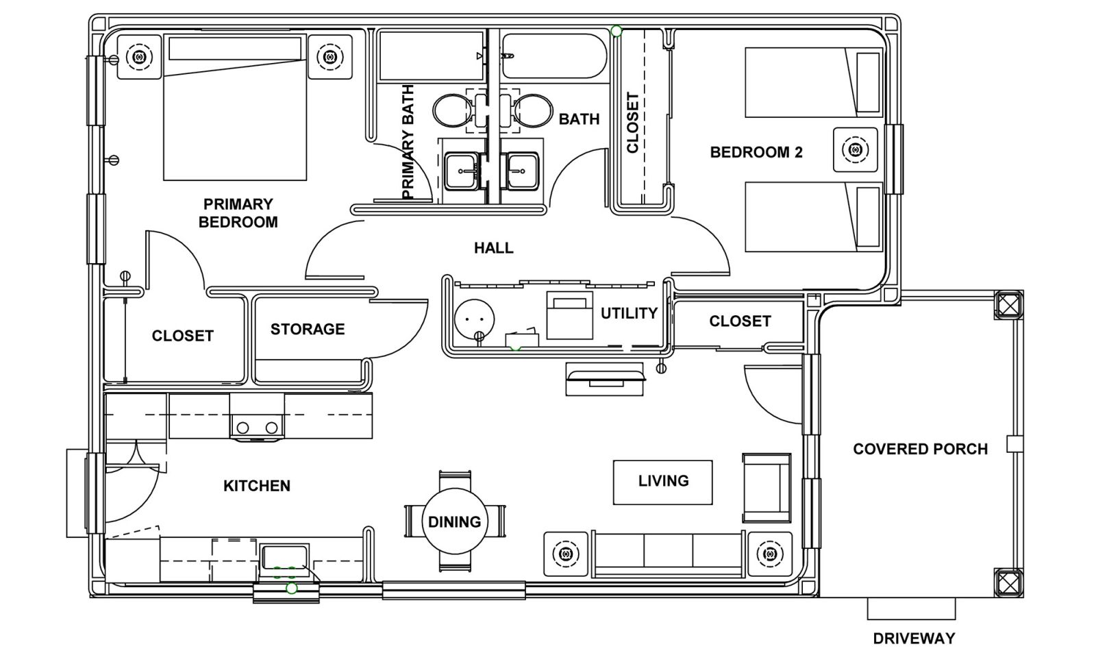
"Cardinal" (2 Bedroom / 2 Bath 917 sf)
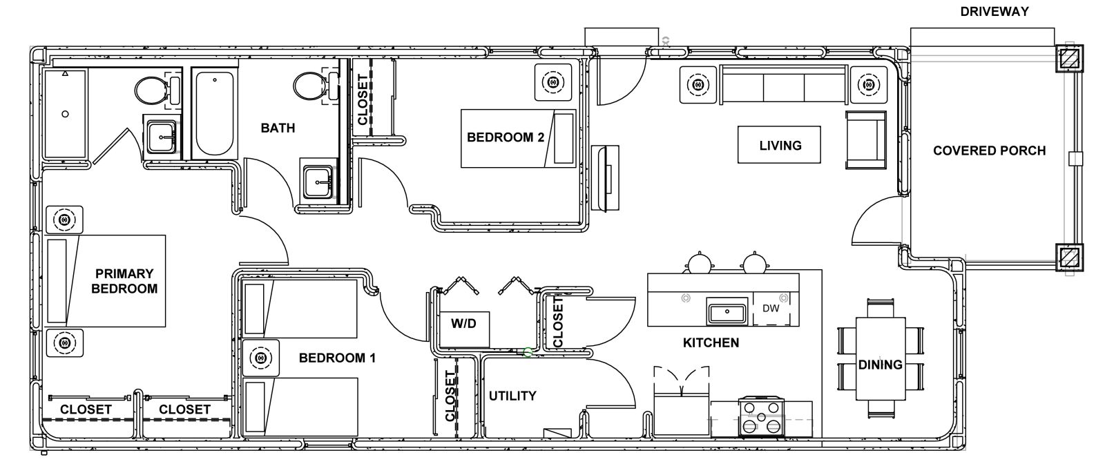
"Dove" (3 Bedroom / 2 Bath 1086 sf)